2
$529,990 Sale
Listed 98 days ago
1230 148 Avenue NW
· 3
· 2.50
· 2
· 1500.41
Key Facts
Key facts for 1230 148 Avenue NW
Property Type
Townhome, 2 Storey
Parking
Double Garage Attached , Double Garage Attached 2 parking
MLS #
A2234724
Size
1500.41 sqft
Basement
Full,Unfinished
Listed on
-
Lot size
-
Days on Market
-
Year Built
2025
Maintenance Fee
-
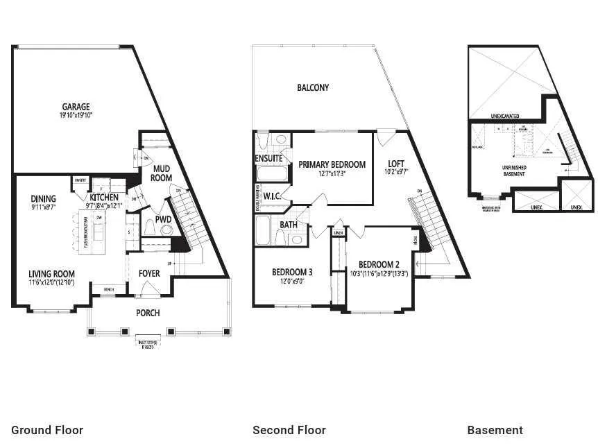
Description
NO CONDO FEE Townhome with Large Balcony & Double Attached Garage. The Brinkley’s open and spacious living area is thoughtfully designed with mudroom and powder rooms tucked to the side. The unique, U-shaped kitchen includes a quartz breakfast bar. The light-filled great room is ideal for both enter...taining and quiet nights at home. Upstairs, enjoy your primary bedroom with a walk-in closet, ensuite and windows overlooking a large private balcony. A convenient nook makes an ideal at home workspace. The additional 2 bedrooms are both generous in size. Equipped with 8 Solar Panels! This New Construction home is estimated to be completed in December 2025. *Photos & virtual tour are representative.
Similar Properties (No results)
Room Types
Bedroom
10`3" x 12`9"
Dimensions -
0 sqft
Bedroom
12`0" x 9`0"
Dimensions -
0 sqft
4pc Bathroom
0`0" x 0`0"
Dimensions -
0 sqft
Courtesy of: Bode Platform Inc.
Copyright Pillar 9™. All rights reserved. Information is deemed reliable but not guaranteed.